☆ CROSSROADS LIBRARY
made in collaboration with MacKenzie Lubin
Program is imagined as a sequence, rather than volumetric spaces. This datum is comprised of different forces acting and reacting to the site, causing a tension between the traditional typology of Boston’s inner-city architecture and the diverse social climate that the site is intertwined within. The form was generated through a process of reinterpreting superimposed two-dimensional information gathered from some of Boston’s most celebrated landmarks. Our proposal points outwards, giving homage to landmarks such as the Museum of Fine Arts, Harvard Gund Hall, and Paris, France. Programmatic decisions were influenced by these landmarks, granting gallery space for art, fashion, and other handmade crafts from the local community. This project rethinks the traditional social environment for Boston’s inner-city community by expanding the possibility that communities can arise within a broad social network. By creating an inspiring spatial environment, that maximizes the opportunities for fellowship, the Crossroads Library seeks to avoid the loneliness and lack of social relationships that characterize many current inner-city projects within Boston.

concept model

points of interest
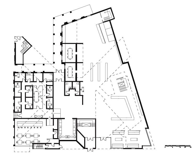
floor one
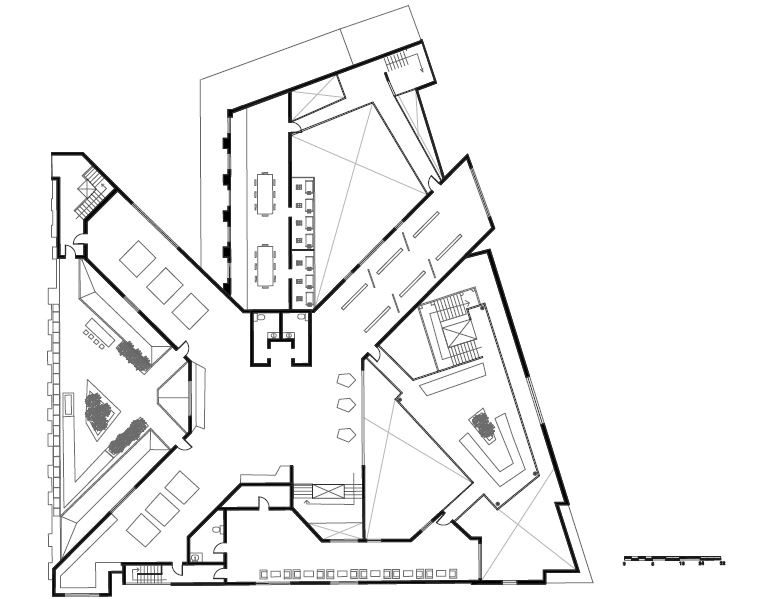
floor two
roof plan

entrance experience

intervention experience

detail model

detail model

detail model

detail model